Next
Next

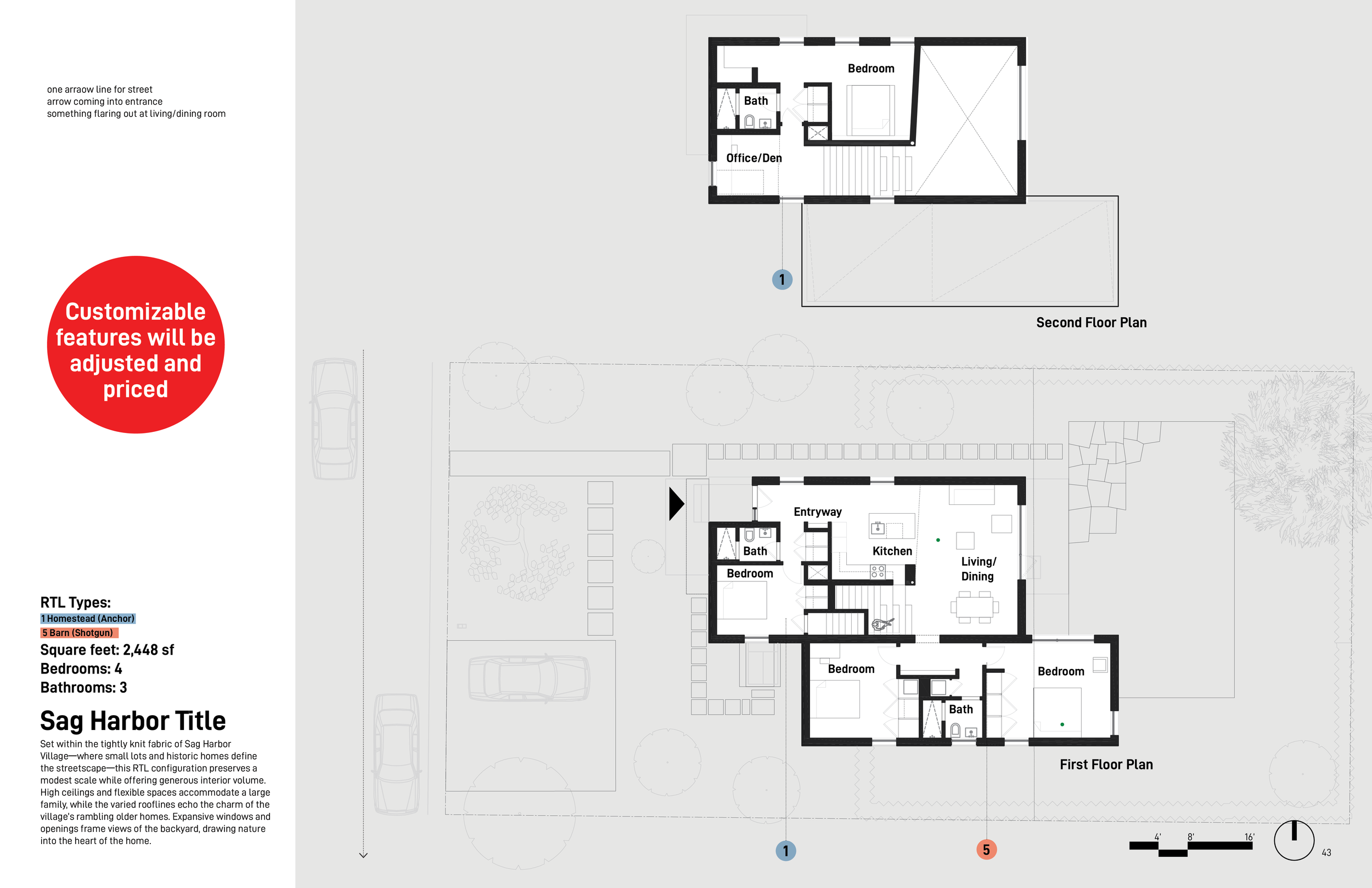
RTL 002_Los Angeles